Este projeto tem como ambição a revitalização dos edifícios e adaptação de seu uso a uma demanda contemporânea. Vemos a intervenção como um grande potencial para melhoria da região e manutenção da memória e do patrimônio material de Porto Alegre.
Para isso o tomamos como premissa de projeto o restauro das fachadas externas, bem como as bay-windows e das aberturas originais de madeira. O objetivo é ter a conformação da quadra, os acessos e passeios, assim como havia pensado o arquiteto Joseph Lutzenberger, aproveitando a boa orientação, insolação e ventilação.
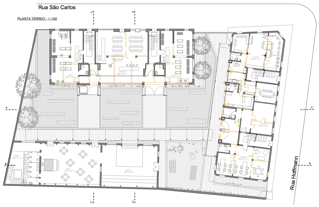
A modificação ocorre na face interna, onde uma nova estrutura organiza as plantas dos pavimentos e suporta as infraestruturas ao novo uso do complexo. Veja na imagem abaixo:
Nas fachadas internas dos dois edifícios, no alinhamento dos núcleos hidráulicos, pensamos uma nova estrutura metálica que parasita os prédios. Essa estrutura
com fechamentos em vidro e madeira soma metragem as áreas molhadas e cria espaços de convívio, fundamental para a nova organização da planta.
A principal função desta construção é garantir o bom funcionamento das infraestruturas: água, esgoto, descidas pluviais, energia, gás, aproveitamento de água de chuva e sol. A intervenção estabelece uma nova prumada externa que garante o abastecimento de água e luz a uma demanda maior e mais moderna do que o previsto em 1928 quando o prédio foi concebido. Considera-se o aproveitamento de água da chuva, e aquecimento de água por placas solares, armazenamento de águas cinzas para suprir usos como irrigação dos jardins e abastecimento dos vasos sanitários.
No térreo, a nova estrutura funciona como uma marquise para um passeio coberto de galeria que convida as pessoas a ingressarem no conjunto. Veja na imagem abaixo:

Valorizando o passeio público, o pátio interno se torna uma extensão da rua. O térreo é uma galeria comercial com lojas voltadas para esse pátio . O Galpão no fundo adquire então uma função diferenciada de serviço ao usuário: um restaurante, um café, uma sala de exposição ou sala de eventos.

Os acessos para pedestre são nas extremidades dos edifícios e na entrada centralizada entre o edifício da rua São Carlos e o edifício da rua Hoffman. Para o acesso de automóveis, em caso de emergência e carga e descarga foi projetado um portão na extremidade do conjunto.

A planta tipo do Edifício São Carlos é adaptada para comportar salas comerciais. A nova estrutura amplia os núcleos molhados (banheiros e copa) e cria zonas de convivência organizando a circulação interna. O pavimento tem área total de 240m2 considerando área comum de 45m2 (copa, banheiros e varanda) e pode ser compartimentado em salas menores.
O acesso dos andares é feito pelas caixas de escadas que dão para rua e são de uso exclusivo dos condôminos e eventuais clientes.

Levando em conta o caráter original concebido ao edifício e valorizando a vitalidade do conjunto com a multiplicidade de usos, destina-se o programa dos pavimentos superiores do Ed. Hoffmann à habitação. Uma flexibilidade concebida às plantas permitem diferentes possibilidades de locação, seja para o aluguel tradicional, com variação de metragem dos apartamentos, ou para um aluguel temporário, com células menores no pavimento intercaladas com áreas comuns.
Para isso é preciso fazer algumas adaptações para atender a demanda atual. Aberturas de vãos nas paredes permite a criação de espaços mais integrados. Cozinhas e banheiros ganham área com a nova estrutura que forma uma grande varanda que contempla o pátio e suas atividades. O acesso dos moradores continua exclusivo e independente dos usos do térreo, pela rua Hoffman.




